
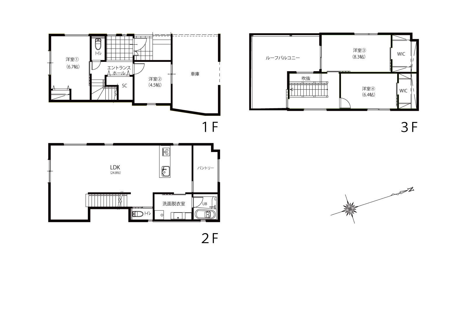
敷地面積 184,42m²建物面積 151.98m²
木造 | FLOOR PLAN
人気のたまプラーザエリアに位置し、
洗練された街並みと充実した商業施設を日常使いできる「たまプラーザテラス」まで徒歩11分という、希少性の高い立地に誕生した戸建て住宅です。
駅近の利便性を享受しながらも、落ち着いた住環境に包まれた本邸は、子育て世帯にとって安心して暮らせるロケーション。
教育・生活・住環境のバランスを重視するご家族にふさわしい住まいです。
建物はゆとりある大型3階建て。
さらに、耐震等級3(最高等級)を取得しており、大切なご家族の暮らしを長期にわたり守る高い安全性を備えています。
日常はもちろん、万が一の災害時にも安心感をもたらす住まい性能です。
住まいの象徴となる大型ルーフバルコニーは、空と街を身近に感じる特別なプライベート空間。
家族でのくつろぎや、お子様との時間を、より豊かで上質なものへと演出します。
立地、住空間、そして確かな安心性能。
住まいの価値に妥協したくないファミリーに、自信をもってお勧めしたい一邸です。


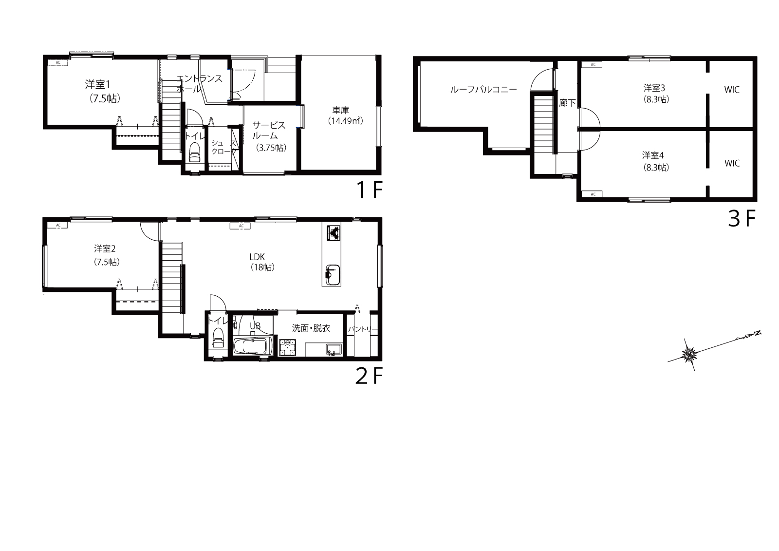
敷地面積 133,86m²建物面積 149.42m²
木造 | FLOOR PLAN
人生のステージを、静かに、そして確かに引き上げる。
洗練された外観デザインと、ゆとりを贅沢に使った空間設計。
住まいに足を踏み入れた瞬間から、その完成度の高さが静かに伝わります。
玄関には大容量のシューズクロークを設え、
日常の動線を美しく整える収納力を確保。
キッチンには大型パントリーを備え、生活感を抑えながらも
機能性を高めた上質な空間を実現しています。
主寝室にはウォークインクローゼットを配置し、
プライベート空間にふさわしいゆとりと品格を演出。
さらに、吹き抜けがもたらす縦の開放感と、
大型ルーフトップバルコニーが広げる外へのつながりが、
日常に心地よい非日常を添えます。
そして、この住まいの本質は、目に見えない部分にも。
最高等級である耐震等級3を取得し、
万一の災害時にも家族と資産を守る確かな構造性能を備えています。
美しさ、快適性、そして揺るぎない安心。
すべてが計算された設計だからこそ、
住まうほどに、その価値が深く実感できる一邸です。